°íÀåÀü·ù°è»ê

Àü·Â°èÅë¿¡¼­ ¹ß»ýÇÒ ¼ö ÀÖ´Â °íÀå °è»ê ¹× Æò°¡

°íÀåÀü·ù°è»êÀº ´Ù¾çÇÑ °íÀå Çö»óÀ¸·Î ÀÎÇÑ ´Ü¶ôÀü·ù °áÁ¤, °íÀå À§Ä¡ ÃßÁ¤, Àü·Â°èÅëÀÇ °ú¼Ò Æò°¡µÈ ¼³ºñ ½Äº° ¹× ºÐ»êÀü¿ø ÄÄÆ÷³ÍÆ®¸¦ Æ÷ÇÔÇÑ ´Ù¾çÇÑ °èÅë ±¸¼º ¿ä¼ÒÀÇ Å©±â¸¦ °áÁ¤Çϴµ¥ ÇʼöÀûÀÎ µµ±¸ÀÔ´Ï´Ù. CYME power engineering ¼ÒÇÁÆ®¿þ¾î´Â Æ÷°ýÀûÀÎ °íÀåÀü·ù°è»ê¸ðµâÀ» Á¦°øÇÏ¿© ¿£Áö´Ï¾î°¡ Àüü °èÅë ½Å·Ú¼º¿¡ ¹ÌÄ¡´Â ´Ù¾çÇÑ ½É°¢µµÀÇ ´Ü¶ôÀü·ù ¿µÇâÀ» Æò°¡Çϴ°ÍÀ» Áö¿øÇÕ´Ï´Ù.

Àü·Â°èÅë¿¡¼­ ¾î´À ÁöÁ¡¿¡¼­³ª Á¸Àç ÇÒ ¼ö ÀÖ´Â ´Ü¶ôÀü·ùÀÇ Å©±â¸¦ ¾Æ´Â °ÍÀº Àü·Â °èÅëÀÇ ½Å·Ú¼ºÀ» È®º¸Çϴµ¥ Áß¿äÇÕ´Ï´Ù. °íÀåÀ¸·Î ÀÎÇØ ¹ß»ýÇÏ´Â ºñÁ¤»óÀûÀÎ Àü·ù ¼öÁØÀº Àü±â ¼³ºñ¿¡ ½ÉÇÑ ½ºÆ®·¹½º¸¦ ÁÖ¸ç, Àü±â ¼³ºñÀÇ Á¤°ÝÀÌ ÀûÀýÇÏÁö ¾ÊÀ¸¸é ¼³ºñ ¼Õ»ó, ºÎ»ó ¹× °èÅë °¡µ¿Áß´ÜÀÌ ¹ß»ýÇÒ ¼ö ÀÖ½À´Ï´Ù.
CYME power engineering ¼ÒÇÁÆ®¿þ¾îÀÇ °íÀåÀü·ù°è»ê ¸ðµâÀº ¿£Áö´Ï¾î°¡ ´Ü¶ô°ú °ü·ÃµÈ ¹®Á¦¸¦ ½ÅÁßÇÏ°Ô Æò°¡ÇÒ ¼ö ÀÖµµ·Ï ´Ù¾çÇÑ ºÐ¼® ¹× ±â´ÉÀ» Á¦°øÇÏ´Â Á¾ÇÕÀûÀÎ ¸ðµâÀÔ´Ï´Ù.
Åë»óÀûÀÎ ´Ü¶ô°è»ê
±âÁ¸ÀÇ ´Ü¶ô °è»êÀº ƯÁ¤ Ç¥ÁØÀ» µû¸£Áö ¾Ê´Â °­·ÂÇÑ °è»ê ¾Ë°í¸®ÁòÀÔ´Ï´Ù.
´ÙÀ½ »çÇ×À» Á¦°øÇÕ´Ï´Ù.
½ÃÄö½º ¹× phase-domain °è»ê
¸ðµç ³ëµåÀÇ ´Ü¶ô Àü·ù °è»ê ¶Ç´Â ÁÖ¾îÁø À§Ä¡¿¡ Àû¿ëµÈ °íÀåÀÇ ¿µÇâ °è»ê
¸ðµç °íÀåÀÇ Á¾·ùµé(LLL, LLL-G, LL, LL-G, L-G)
½½¶óÀ̵ù °íÀå ¿É¼Ç
Impedance tolerance adjustments
Machine short-circuit contributions
IEC-60909¨Ï short-´Ü¶ô
IEC-60909¨Ï ´Ü¶ô Àü·ù °è»êÀº ±¹Á¦ IEC-60909¨Ï ÁöħÀ» ÁؼöÇϸç 3»ó ¹æ»çÇü ¶Ç´Â ¸Þ½Ã AC ³×Æ®¿öÅ©¿¡ ´ëÇÑ °íÀå Àü·ù °è»êÀ» Áö¿øÇÕ´Ï´Ù.
4°¡Áö À¯ÇüÀÇ °íÀå Àü·ù °è»ê: Ãʱ⠴ܶô Àü·ù, ÃÖ´ë ºñ´ëĪ °íÀå ¶Ç´Â ÇÇÅ© Àü·ù, Â÷´Ü °íÀå Àü·ù ¹× Á¤»ó»óÅ °íÀå Àü·ù
Ç¥ÁØ ±â¹Ý ¶Ç´Â »ç¿ëÀÚ Á¤ÀÇ Àü¾Ð °è¼ö
º¯¾Ð±â, ¹ßÀü±â, ³×Æ®¿öÅ© ÇÇ´õ ¹× ¹ßÀü¼Ò ÀåÄ¡ÀÇ ÀÓÇÇ´ø½º º¸Á¤ °è¼ö
¹ßÀü±â, ¸ðÅÍ ¹× ³×Æ®¿öÅ© ÇÇ´õÀÇ ÀϹÝÀûÀÎ X/R ºñÀ² º¸°í¼­
IEC-61363¨Ï ´Ü¶ô
¼±¹Ú°ú À̵¿½Ä ¹× °íÁ¤½Ä ÇØ¾ç ÀåÄ¡ÀÇ 3»ó ¹æ»çÇü AC Àü±â ¼³ºñÀÇ ´Ü¶ô ¼öÁØÀ» °è»êÇÕ´Ï´Ù. 3»ó ´ëĪ ´Ü¶ô Á¶°Ç¿¡ ´ëÇØ °íÀå ½ÃÀÛºÎÅÍ Á¤»ó»óűîÁö Àü·ùÀÇ AC ¹× DC ±¸¼º ¿ä¼Ò¸¦ ¸ðµÎ °è»êÇÕ´Ï´Ù.
Ãʱâ Àü·ù(I''), ÇÇÅ© Àü·ù(Ip), Â÷´Ü Àü·ù(Ib) ¹× DC Â÷´Ü Àü·ù(Idc)
°íÀå ½ÃÀÛ ÁöÁ¡¿¡¼­ Á¤»ó»óűîÁöÀÇ ´Ü¶ô Àü·ù¸¦ º¸¿©ÁÖ´Â ½Ã°£ ¿µ¿ª Ç÷Ô
ANSI¢ç ´Ü¶ô
ANSI¢ç ´Ü¶ô °è»êÀº ƯÁ¤ duty À¯ÇüÀÇ ´Ü¶ô ¿¬±¸¿Í °ü·ÃµÈ ºÏ¹Ì ANSI¢ç C37.5, ANSI¢ç C37.010, ANSI¢ç C37.13 Ç¥ÁØÀ» ÁؼöÇÕ´Ï´Ù.
¿¬±¸µÈ µàƼ À¯Çü¿¡´Â ½Ã°£ Áö¿¬, Á¢Á¡ ºÐ¸®, Æó¼â/·¡ÄªÀÌ Æ÷ÇԵ˴ϴÙ.
ÀúÀü¾Ð Â÷´Ü±â Á¤°Ý Æò°¡
Ç¥ÁØ¿¡ µû¶ó ¸ðÅÍ Â÷°úµµ À¯µµÀúÇ׿¡ Àû¿ëµÇ´Â ½Â¼ö ÀÚµ¿ ¼±Á¤
Á÷·Ä °íÀå
Á÷·Ä °íÀå ºÐ¼®Àº ÀϹÝÀûÀ¸·Î Áß¼º Àü·ù¸¦ Å©°Ô Áõ°¡½ÃŰ´Â ³×Æ®¿öÅ©¿¡ ´ëÇÑ °³¹æ ȸ·Î ¶Ç´Â ºñ´ëĪ ¶óÀÎ ÀÓÇÇ´ø½º Á¶°ÇÀÇ ¿µÇâÀ» Æò°¡ÇÕ´Ï´Ù.
´Ü»ó °³¹æ °íÀå
2»ó °³¹æ °íÀå
ºñ´ëĪ ÀÓÇÇ´ø½º
´ÙÁß»ç°íÀÇ °íÀå
´ÙÁß °íÀå ºÐ¼®Àº ³×Æ®¿öÅ©ÀÇ ´Ù¸¥ À§Ä¡¿¡ µ¿½Ã¿¡ °áÇÔÀÌ ÀÖÀ» ¶§ÀÇ ¿µÇâÀ» ¿¬±¸ÇÕ´Ï´Ù.
¼ÇÆ®(shunt) ¹× Á÷·Ä °íÀåÀÇ Á¶ÇÕ ¿¬±¸
µÑ ÀÌ»óÀÇ ³×Æ®¿öÅ© À§Ä¡¿¡¼­ µ¿½Ã¿¡ ¹ß»ýÇÏ ´Â °íÀåÀÇ ¿µÇâ Æò°¡
°íÀå ÁöÁ¡ ÃøÁ¤±â
°íÀå ÁöÁ¡ ÃøÁ¤±â ºÐ¼®Àº ÇöÀç ÃøÁ¤¼³ºñ¿¡¼­ ±â·ÏµÈ ´Ü¶ôÀ» »ç¿ëÇÏ¿© ³×Æ®¿öÅ©¿¡¼­ °¡´ÉÇÑ °íÀå À§Ä¡¸¦ °áÁ¤ÇÕ´Ï´Ù.
°èÅë °íÀå
Ç¥ÁØ ´Ü¶ô ºÐ¼®¿¡ ÅëÇÕµÈ ³×Æ®¿öÅ© ¿À·ù ¿É¼Ç Àº ¹èÄ¡ ¸ðµå¿¡¼­ ÀÏ·ÃÀÇ ´Ü¶ô ºÐ¼®À» ¼öÇàÇÏ °í Àüü ³×Æ®¿öÅ© ¶Ç´Â »ç¿ëÀÚ Á¤ÀÇ ¸ð´ÏÅ͸µ À§Ä¡¿¡¼­ ÀÚ¼¼ÇÑ º¸°í¼­ ¹× ¿ä¾à º¸°í¼­¸¦ »ý¼ºÇÒ ¼ö ÀÖ´Â °¡´É¼ºÀ» Á¦°øÇÕ´Ï´Ù.
¼ø°£Àü¾Ð°­ÇÏ
¼ø°£Àü¾Ð°­ÇÏ ºÐ¼®Àº ³×Æ®¿öÅ© ¿À·ù ¶Ç´Â ¸ðÅÍ ½Ãµ¿ ¶Ç´Â °úºÎÇÏ¿Í °°Àº ±âŸ Àå¾Ö·Î ÀÎÇÑ Àü¾Ð Å©±âÀÇ ±Þ°ÝÇÑ °¨¼ÒÀÇ ¿µÇâÀ» Æò°¡ÇÕ´Ï´Ù.
Àü¾Ð°­ÇÏ Á֯ļö ¹× Áö¼Ó ½Ã°£ °è»êÀÇ °áÁ¤À» ÅëÇØ ´Ù¸¥ º¸È£ ÀåÄ¡ÀÇ Á¦°Å ½Ã°£ÀÇ À¯È¿¼ºÀ» È®ÀÎÇÕ´Ï´Ù.
Àú¿ø±³¶õÀ¸·Î ÀÎÇÑ Àü¾Ð °­ÇÏ °áÁ¤
¼³ºñ µî±Þ °ËÁõ
¼³ºñ µî±Þ °ËÁõ ºÐ¼®Àº ¿¡³ÊÁö ¼ö¿ä Áõ°¡¿Í ÇÔ²² ½ºÆ®·¹½º°¡ Áõ°¡ÇÔ¿¡ µû¶ó ÀǵµÇÑ ±â´ÉÀ» ¼öÇàÇϱ⿡ ÀûÀýÇÑ Å©±âÀÎÁö ÆÇ´ÜÇϱâ À§ÇØ ¼³ºñ¸¦ Æò°¡ÇÕ´Ï´Ù.
´Ü¶ô ºÐ¼®À» ÅëÇØ °èÅë ¼³ºñ°¡ ANSI¢ç ¶Ç´Â IEC ¿ä±¸ »çÇ׿¡ µû¶ó °íÀå Àü·ù¸¦ °ßµô ¼ö ÀÖ´ÂÁö È®ÀÎÇÕ´Ï´Ù.
Àü·Â È帧 ºÐ¼®À¸·Î ³×Æ®¿öÅ© ¼³ºñ¿¡ °úºÎÇϰ¡ °É¸®°Å³ª Á¤»ó»óÅ¿¡¼­ Àü¾Ð violationÀÌ ¹ß»ýÇÏ´ÂÁö Á¤È®È÷ ÆÄ¾Ç
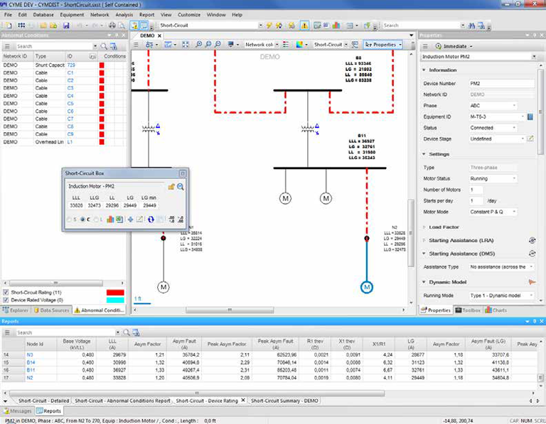
°á°ú º¸±â
º¸°í¼­ ¹× Â÷Æ®
Microsoft Excel¢ç, XML ¶Ç´Â µ¥ÀÌÅͺ£À̽º Çü½ÄÀ¸·Î ³»º¸³¾ ¼ö Àִ ǥ Çü½ÄÀÇ »ó¼¼ º¸°í¼­
¸ÂÃãÇü º¸°í¼­ ÄÁÅÙÃ÷
´Ü¼± °á¼±µµ µð½ºÇ÷¹ÀÌ
»ç¿ëÀÚ Á¤ÀÇ ±âÁØ¿¡ µû¶ó ÀÌ·Ê Çö»óÀ» ³ªÅ¸³»´Â »ö»ó ÄÚµù
´Ü¼±°á¼±µµÀÇ »ç¿ëÀÚ Á¤ÀÇ À§Ä¡¿¡¼­ »ç¿ëÀÚ Á¤ÀÇ °¡´ÉÇÑ ÅÂ±× ¹× µµ±¸ ¼³¸í